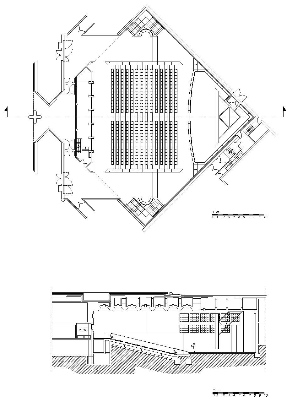
Le Grand Louvre

Paris - Ile de France
DescriptionRéalisation d’une salle de conférences et d’un auditorium
Inauguration1985
ArchitecteLeoh Ming Pei
MissionMaîtrise d'oeuvre des équipements
Montant des travaux de scénographie 1,8 M.€
Maîtrise d'ouvrageMusée du Louvre
ProgrammeSalle de 500 places